
Solicite información
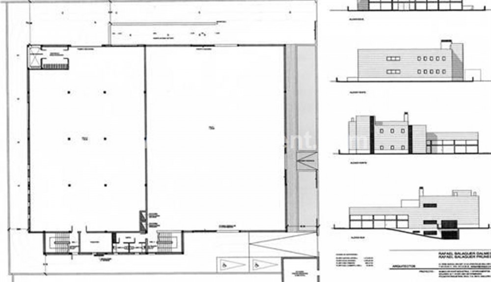
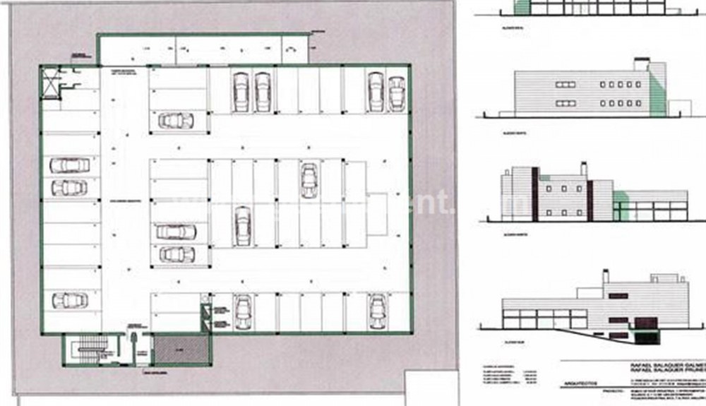
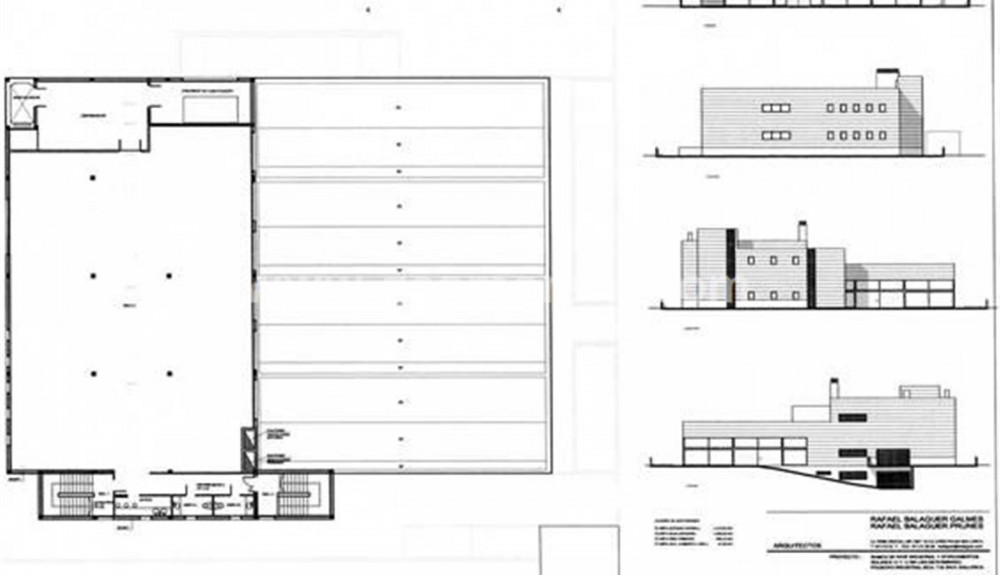
NAVE INDUSTRIAL 1.339 m2 EN POLÍGONO DE INCA.
Referencia: N-14
Características
Superficie total 1339
Nº de baños 2
Conservación del inmueble PERFECTO ESTADO
Tipo de suelo HORMIGON PULIDO
Metros sótano 1319
Nº de puertas 2
Nº plazas de parking 54
Nº entradas peatonales 2
Metros planta calle 1339
Metros planta 1 659.22
Tipo estructura nave METALICA
Nº entradas trailer 2
Nº entradas camión 1
Tipo de cubierta SANDWICH
Con sotano
Con parking